Sprchový kút s dvoma posuvnými dverami
SPRCHOVÉ KÚTY
Sprchový kút s dvoma posuvnými dverami
Séria posuvných sprchových kútov, dverí a zásten WELLNESS BLACK A4 sa vyznačuje najmä svojou kombinačnou variabilitou rôznych rozmerových riešení sprchovacieho priestoru. Novinkou, ktorú WELLNESS BLACK prináša je veľmi obľúbený walk-in systém, avšak s inovatívnou možnosťou posuvnej časti. Hrúbka skla 6 mm vo výške 200 cm definuje túto modelovú sériu aj z hľadiska jej priaznivej cenovej dostupnosti. Brzdiaci systém SOFT-Close pri otváraní a zatváraní dverí je neopomenuteľnou praktickou výhodou. Sklenené plochy sú ošetrené impregnačnou vrstvou antiplakovej úpravy Tekno.cal zjednodušujúcu ich pravidelnú údržbu.
UPOZORNENIE! Pri výbere sprchového kúta je veľmi dôležitý inštalačný rozmer tzv. ROZTIAHNUTIE PROFILOV, ktorý nájdete v tabuľke. Roztiahnutie určuje minimálny a maximálny rozmer sprchového kúta. Sprchové kúty Aquatek sú dodávané BEZ SPRCHOVEJ VANIČKY. Vhodné vaničky a iné príslušenstvo nájdete pod záložkou SÚVISIACE PRODUKTY.Oválne keramické umývadlo
Oválne keramické umývadlo bez otvoru pre batériu, bez prepadu.
Sprchová súprava s termostatickou batériou
Sprchový set PG-11-BLACK je nenahraditeľnou súčasťou každého sprchovacieho kúta, ktorý dodá kúpeľni na praktickosti a luxuse zároveň. Navodí príjemný pocit po celodennej námahe a strese. Doprajte si pocit relaxácie pri každom sprchovaní. Všetko je kompatibilné s ďalšími doplnkami sprchových častí. Je vyrobené z odolného materiálu s dlhou životnosťou, odolné proti korózii.
SPRCHOVÉ VANIČKY
SPRCHOVÉ SYSTÉMY
VANE
UMÝVADLÁ
SANITA
BATÉRIE
KÚPEĽŇOVÝ NÁBYTOK
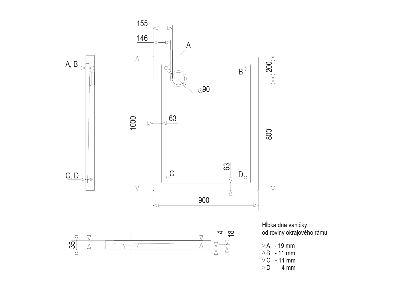
Sprchová vanička z tvrdeného polyméru
Sprchové vaničky z tvrdeného polyméru sa vyznačujú vysokou pevnosťou. Obsahujú antibakteriálnu úpravu povrchu, odolnú voči rastu baktérií a plesní, ktoré sú charakteristické pre prostredia so zvýšenou vlhkosťou.
Plastový sifón SMC s chrómovou krytkou je zahrnutý v cene vaničky. (je súčasťou balenia).
Cena za samotný sifón je : 14,70 €
208,00 € Pôvodná cena bola: 208,00 €.145,60 €Aktuálna cena je: 145,60 €.
1 - 3 pracovné dni od potvrdenia objednávky.
| SÉRIA | |
|---|---|
| TYP VANIČKY | |
| MATERIÁL | |
| POVRCHOVÁ ÚPRAVA | |
| DĹŽKA (cm) | |
| ŠÍRKA (cm) | |
| VÝŠKA (cm) | |
| VÁHA (kg) | |
| PRIEMER OTVORU PRE SIFÓN (mm) | |
| SIFÓN | |
| KRYTKA | |
| ROZMER KRYTKY (mm) | |
| NOŽIČKY (ks) | |
| PREDNÉ ČELO | |
| ANTIBAKTERIÁLNA ÚPRAVA POVRCHU |
Nemáte ešte účet?
Vytvoriť účet